Ravichandran Residence cover image
Location
Trichy
Client
Mr.Ravichandran
Year of completion
2019
Built-up area
2500 Sq.Ft
Site area
3500 Sq.Ft
Design team
Vijaykumar, Sudhaman, Shanthi,Rameshwari
Contractor
Baskar
Site engineer
Manikandan
Structural consultant
Ragavendran
Electrical consultant
DNR consultants
Plumbing consultant
PRIVALS Consultants
Gallery
Design Concept

This residence located in Trichy, is in a serene enclave in the busy part of the city, in the mixed-use residential neighborhood. The house is part of three other houses with a central open space accommodating tree, birds & squirrels, creating a scenic environment.

The starting point of the design was a huge mango tree in the middle of the site. The effort to incorporate that as part of the house failed and what remains is a court in its place. The client's interest in collecting traditional utensils, art and furniture of artistic value, a collection of souvenirs from their travels, love towards traditional elements & objects, clubbed with a desire for clean legible spaces formed a salient part of the design brief.

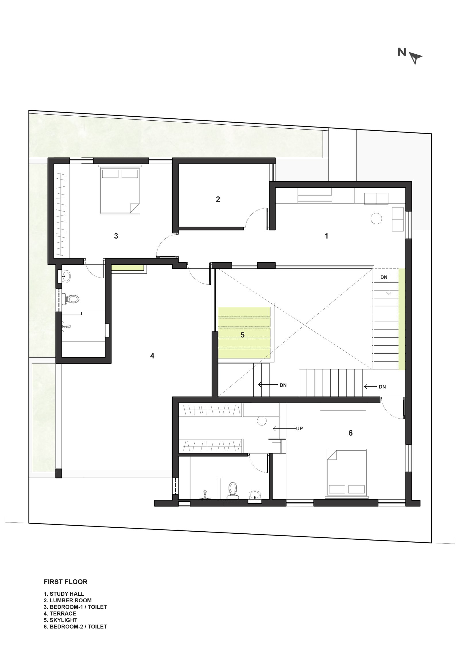
The levels inside the house, around the court helps not only in suggesting a veiled demarcation between visitor and family space but also helps in reaching the master bedroom, at the mezzanine, with a lesser number of steps. The master bedroom overlooks into the dining and the kitchen through a "Jharoka" create hierarchy to each of the spaces based on their inert nature of the space. A courtyard at the center with 4 wooden columns and a skylight above, but at a higher level, is a modern expression of the traditional idea.

The sky-lit wall of the staircase leading to the upper floor provides an ideal surface to display the family photograph collection spanning 3 generations. The house is complete with 2 other bedrooms and a cozy study in the first floor with refurbished wooded shelves, furniture and Athangudi tiles. The terrace in level is approached right up to the highest level with fragmented short flight of steps that makes the whole house accessible to all.

Design Concept
×